Commercial Space on 29 Brattle Street
Prime Commercial Space in the Heart of Cambridge, MA
Welcome to a truly exceptional commercial opportunity in one of Cambridge’s most vibrant and sought-after locations. This beautifully designed space combines functionality with charm, offering the perfect setting for a high-end restaurant, café, or hospitality concept.
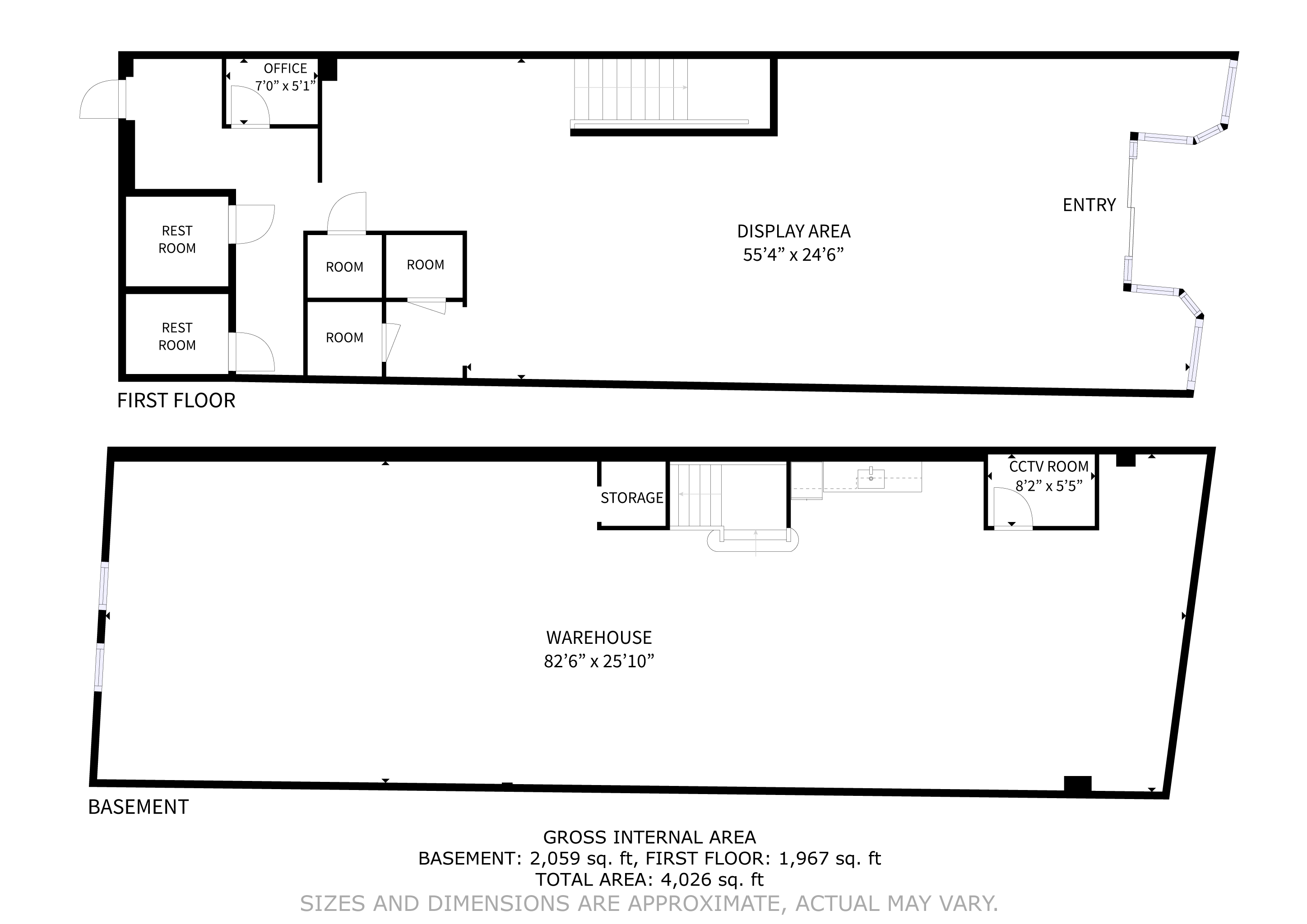
Step inside to discover a spacious dining area with ample room for tables and a full bar counter — thoughtfully laid out to create an inviting and comfortable atmosphere for guests. The open layout encourages a natural flow between dining and service areas, ensuring efficiency and an enjoyable experience for both patrons and staff.
The property includes a large, fully equipped kitchen with generous prep space, ideal for accommodating a busy restaurant operation. There are also two restrooms for customer convenience and a dedicated staff area for smooth daily operations.
High ceilings enhance the sense of openness and airiness throughout the space, while the location itself — nestled among bustling shops, cafes, and foot traffic — ensures excellent visibility and accessibility.
With its spacious design, prime location, and endless potential, this commercial space on Brattle Street is ready to become the next standout destination in Cambridge.
Information
Rental Rate: Contact for pricing
Space Type: Commercial Space
Photos
Location
Other properties
Brattle Street